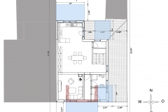
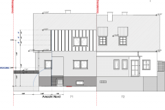
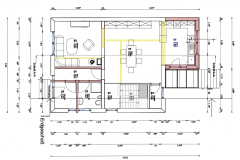
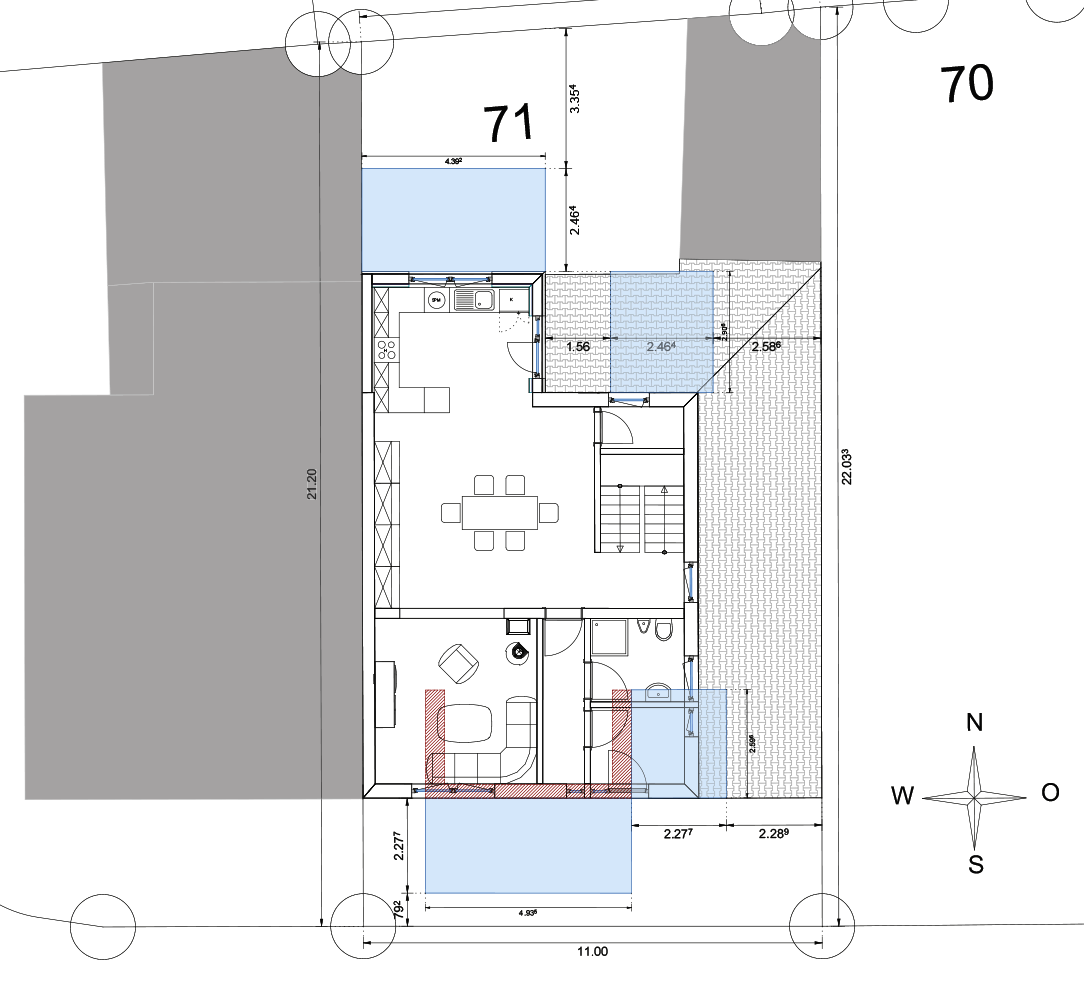
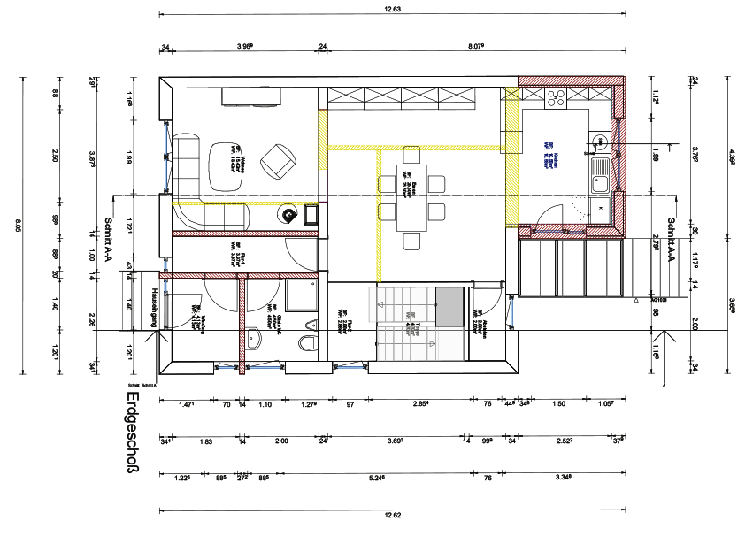
Bauantragspläne Um Ihr Bauvorhaben umsetzen zu können bedarf es einer Baugenehmigung.Ich erstelle alle notwendigen Baupläne für diese Genehmigung, damit wir Ihr Bauvorhaben schnell in die Tat umsetzen können.